4200 49TH AVENUE ST PETERSBURG FL 33711
See Also...
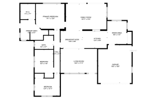
Overview of 4200 49th Ave S
No
Don't miss this home for sale in Maximo Moorings! Is your home feeling a little cramped? Here's the answer!! discover your dream florida lifestyle in this spacious 3-bedroom, 2-bathroom home, boasting over 2300 square feet of comfortable living space! Nestled in the maximo neighborhood of st. Petersburg, this property offers a fantastic opportunity to enjoy the best of all st. Pete has to offer: a peaceful residential setting with easy access to city amenities and world class beaches. enjoy ample space for the whole family with three well-sized bedrooms and two bathrooms; the primary has an incredible en suite bath with dual sinks, a beautiful walk in shower and vanity space, as well as a large walk-in closet. The huge bonus room provides endless possibilities for a home theater, playroom, office, or whatever your heart desires with sliders opening onto the rear paver patio and your fenced in yard for privacy. the large kitchen features an eat-in space, perfect for casual meals and gatherings with loved ones, as well as a more formal dining space outside the kitchen. With the bonus room, you also have the benefit of two living spaces. don't miss out on this incredible opportunity! Schedule a showing today and imagine the possibilities in this wonderful maximo home. more photos coming soon, but couldn't wait to get this in front of you!!
This lovely single family home was built in 1963 and features 3 bedrooms, and 2 full bathrooms. This home for sale is 2,901 square feet, with 2,308 sq ft being air conditioned living space. The home has a 2 car garage and does not have a private swimming pool.
Directions to this property are as follows: Us Hwy 19 (34th St S) South To 50th Ave S. Head West Through Roundabout, And Follow 50th Ave S To 49th Ave S. Turn Left, And Follow To Address On The Right (south Side Of The Street). Yellow House.
Please contact your ZFC agent for more information about MLS# MFRTB8392030 or any other homes for sale in St Petersburg or elsewhere in the Pinellas County area.
4200 49th Ave S Price Calculator
The payment calculator figures for 4200 49th Ave S should be used as an estimate only. Loan terms including interest rate, and required downpayment will vary with each lender and/or individual. RE taxes for this home for sale are estimated based on the actual property taxes for this property for the tax year 2024 which are $10,318 but will likely change when this home sells. These estimations are calculated from a list price of $550,000 and a 25% down payment and do not include homeowners insurance which will vary greatly depending on the home characteristics and location.
Recent Home Sales near 4200 49th Ave S
MLS# MFRTB8392030 Listing History
Pinellas County Schools
Elementary School
Middle School
High School
Public Transportation
Pinellas Suncoast Transit Authority:
Route 90 GRAND CENTRAL/ST. PETE BEACH
Pinellas Suncoast Transit Authority:
Route 90 GRAND CENTRAL/ST. PETE BEACH
Pinellas Suncoast Transit Authority:
Route 90 GRAND CENTRAL/ST. PETE BEACH
Pinellas Suncoast Transit Authority:
Route 34 ST.PETERSBURG/LARGO TRANSIT CENT
Pinellas Suncoast Transit Authority:
Map of 4200 49th Ave S St Petersburg FL 33711
The data relating to homes for sale or lease or other real estate for sale or for rent on the ZFC website comes in part from a cooperative data exchange program of the MLS in which this Broker participates. The real estate displayed may not be all of the homes in the database, or all of the properties listed with Brokers participating in the cooperative data exchange program. Homes for sale that are listed by Brokers other than this Broker are marked with either the listing Broker's name or the MLS name or a logo provided by the MLS and the details page about such properties includes the name of the listing Brokers. Information provided is thought to be reliable but is not guaranteed to be accurate; you are advised to verify facts that are important to you. No warranties, expressed or implied, are provided for the data herein, or for their use or interpretation by the user. ZFC, the Florida Association of Realtors and its cooperating Multiple Listing Services do not create, control or review the property data displayed herein and take no responsibility for the content of such records. Federal law including the fair housing act prohibits discrimination on the basis of race, color, religion, sex, handicap, familial status or national origin in the sale, rental or financing of housing. IDX information is provided exclusively for personal, non-commercial use, and may not be used for any purpose other than to identify prospective properties consumers may be interested in purchasing. Information is deemed reliable but not guaranteed.
-
- Palm Beach
- Boca Raton
- Highland Beach
- Delray Beach
- Boynton Beach
- Lake Worth
- Wellington
- West Palm Beach
- Palm Beach Gardens
- Jupiter
- Singer Island
- Broward
- Fort Lauderdale
- Parkland
- Coral Springs
- Davie
- Weston
- Plantation
- Pembroke Pines
- Southwest Ranches
- Hillsboro Beach
- Miami/Dade
- Miami
- Miami Beach
- Aventura
- Sunny Isles
- Bal Harbour
- Surfside
- Coral Gables
- Treasure Coast
- Port Saint Lucie
- Fort Pierce
- Palm City
- Jensen Beach
- Vero Beach
- Stuart
- Hobe Sound
- Gulf Coast
- Naples
- Marco Island
- Fort Myers
- Bonita Springs
- Sarasota
- Tampa
- Clearwater





