4468 57TH AVENUE ST PETERSBURG FL 33714
See Also...
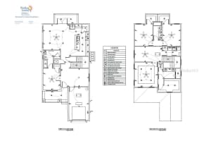
Overview of 4468 57th Ave N
No
Under construction. Hint**save it in favorites to watch the progress through photos up to the grand finale. Be a part of the process and watch them build your next dream home! No hoa fee & no flood insurance required! Take a look at the photos theyll start with current updates going back to the beginning of construction! Upstairs there will be 3 bedrooms, 2 full bathrooms on the second floor including a convenient laundry room and loft area to relax. The primary suite will have a large walk in closet as well as an en-suite luxury bathroom. On the first floor there will be an additional bedroom for guests or an office, a dining area, living room open to the modern kitchen which includes a waterfall stone counter on an oversized kitchen island, stainless appliance package, vented hood, and closet pantry for additional storage. Additionally, the pool sized back yard will be framed by a vinyl fence with a back porch perfect for relaxing. Features also include impact rated windows and doors, recessed lighting, high ceilings and designer finishes. Conveniently located near shopping, restaurants, international airports, top rated beaches, & down town st pete. .Final design and exterior finishes may vary. Inquires welcome for additional information.
This lovely single family home was built in 2026 and features 4 bedrooms, and 3 full bathrooms. This home for sale is 2,824 square feet, with 2,341 sq ft being air conditioned living space. The home has a 1 car garage and does not have a private swimming pool.
Directions to this property are as follows: South On 49th Street N From Park Blvd, Left On 58th Ave N At The Synovus , Right On 44th St N At The Stop Sign , Right On 57th Ave N , House Will Be Down On The Left.
Please contact your ZFC agent for more information about MLS# MFRTB8496152 or any other homes for sale in St Petersburg or elsewhere in the Pinellas County area.
4468 57th Ave Price Calculator
The payment calculator figures for 4468 57th Ave N should be used as an estimate only. Loan terms including interest rate, and required downpayment will vary with each lender and/or individual. RE taxes for this home for sale are estimated based on the actual property taxes for this property for the tax year 2025 which are $1,813 but will likely change when this home sells. These estimations are calculated from a list price of $774,990 and a 25% down payment and do not include homeowners insurance which will vary greatly depending on the home characteristics and location.
Recent Home Sales near 4468 57th Ave
MLS# MFRTB8496152 Listing History
Pinellas County Schools
Elementary School
Middle School
High School
Public Transportation
Pinellas Suncoast Transit Authority:
Route 75 GATEWAY MALL/TYRONE SQUARE
Pinellas Suncoast Transit Authority:
Route 75 GATEWAY MALL/TYRONE SQUARE
Pinellas Suncoast Transit Authority:
Route 75 GATEWAY MALL/TYRONE SQUARE
Pinellas Suncoast Transit Authority:
Route 75 GATEWAY MALL/TYRONE SQUARE
Pinellas Suncoast Transit Authority:
Map of 4468 57th Ave St Petersburg FL 33714
The data relating to homes for sale or lease or other real estate for sale or for rent on the ZFC website comes in part from a cooperative data exchange program of the MLS in which this Broker participates. The real estate displayed may not be all of the homes in the database, or all of the properties listed with Brokers participating in the cooperative data exchange program. Homes for sale that are listed by Brokers other than this Broker are marked with either the listing Broker's name or the MLS name or a logo provided by the MLS and the details page about such properties includes the name of the listing Brokers. Information provided is thought to be reliable but is not guaranteed to be accurate; you are advised to verify facts that are important to you. No warranties, expressed or implied, are provided for the data herein, or for their use or interpretation by the user. ZFC, the Florida Association of Realtors and its cooperating Multiple Listing Services do not create, control or review the property data displayed herein and take no responsibility for the content of such records. Federal law including the fair housing act prohibits discrimination on the basis of race, color, religion, sex, handicap, familial status or national origin in the sale, rental or financing of housing. IDX information is provided exclusively for personal, non-commercial use, and may not be used for any purpose other than to identify prospective properties consumers may be interested in purchasing. Information is deemed reliable but not guaranteed.
-
- Palm Beach
- Boca Raton
- Highland Beach
- Delray Beach
- Boynton Beach
- Lake Worth
- Wellington
- West Palm Beach
- Palm Beach Gardens
- Jupiter
- Singer Island
- Broward
- Fort Lauderdale
- Parkland
- Coral Springs
- Davie
- Weston
- Plantation
- Pembroke Pines
- Southwest Ranches
- Hillsboro Beach
- Miami/Dade
- Miami
- Miami Beach
- Aventura
- Sunny Isles
- Bal Harbour
- Surfside
- Coral Gables
- Treasure Coast
- Port Saint Lucie
- Fort Pierce
- Palm City
- Jensen Beach
- Vero Beach
- Stuart
- Hobe Sound
- Gulf Coast
- Naples
- Marco Island
- Fort Myers
- Bonita Springs
- Sarasota
- Tampa
- Clearwater





