7880 54TH AVENUE ST PETERSBURG FL 33709
See Also...
Overview of 7880 54th Ave N #77
No
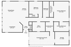
Don't miss this property for sale in Club Chalet! **charming 3-bedroom home in desirable Club Chalet 55+community ** welcome to this inviting 3-bedroom, 2-bath home situated on a desirable corner lot in the vibrant Club Chalet community. Built by jacobson home builders in 2004, this residence combines comfort and functionality, making it the perfect place for your next chapter. as you step inside, you'll be greeted by an open living and dining area that flows seamlessly into the well-appointed kitchen. The kitchen features ample cabinets, new dishwasher 2021, new faucet 2024. Laundry room is conveniently located with wash sink. The third bedroom is versatile, ideal for use as a home office with built-ins, allowing for a productive workspace. enjoy your mornings and evenings on the screened-in porch, where you can unwind while overlooking the serene pond with a fountaina perfect backdrop for relaxation. The property also includes a 4 x 8 above-ground planter in the backyard, ideal for gardening enthusiasts. this home has been well-maintained, with a roof replaced in april 2020 that comes with a transferable warranty, and termite treatment completed in april 2022 by hughes stations, including a yearly contract for peace of mind. The unit is secured with tie-downs and features an outside sprinkler system installed in january 2015 to keep your yard lush. living in Club Chalet means enjoying a wealth of community amenities, including a heated pool, clubhouse, and a variety of recreational activities such as shuffleboard and community dinners. With a low monthly fee of just $267, which covers water, sewer, lawn maintenance, internet, cable, and garbage collection, you can enjoy a carefree lifestyle. conveniently located close to beautiful beaches, restaurants, and grocery stores, this golf cart-friendly community makes it easy to explore your surroundings. Plus, downtown st. Petersburg is just 20 minutes away, offering a vibrant mix of dining, shopping, and entertainment options. dont miss the opportunity to make this lovely home your own and enjoy the wonderful lifestyle that Club Chalet has to offer!
This lovely property was built in 2004 and features 3 bedrooms, and 2 full bathrooms. This property for sale is 1,998 square feet, with 1,404 sq ft being air conditioned living space. The property has a does not have a private swimming pool, although there is a community pool in the complex for use by residents.
Directions to this property are as follows: 54th Ave N To 7880 54th Ave N Address.
Please contact your ZFC agent for more information about MLS# MFRTB8365026 or any other properties for sale in St Petersburg or elsewhere in the Pinellas County area.
7880 54th Ave Price Calculator
The payment calculator figures for 7880 54th Ave N #77 should be used as an estimate only. Loan terms including interest rate, and required downpayment will vary with each lender and/or individual. RE taxes for this property for sale are estimated based on the actual property taxes for this property for the tax year 2024 which are $3,021 but will likely change when this property sells. These estimations are calculated from a list price of $250,000 and a 25% down payment and do not include homeowners insurance which will vary greatly depending on the property characteristics and location.
Recent Property Sales near 7880 54th Ave
MLS# MFRTB8365026 Listing History
Pinellas County Schools
Elementary School
Middle School
High School
Public Transportation
Pinellas Suncoast Transit Authority:
Route 75 GATEWAY MALL/TYRONE SQUARE
Pinellas Suncoast Transit Authority:
Route 75 GATEWAY MALL/TYRONE SQUARE
Pinellas Suncoast Transit Authority:
Route 75 GATEWAY MALL/TYRONE SQUARE
Pinellas Suncoast Transit Authority:
Route 75 GATEWAY MALL/TYRONE SQUARE
Pinellas Suncoast Transit Authority:
Map of 7880 54th Ave St Petersburg FL 33709
The data relating to homes for sale or lease or other real estate for sale or for rent on the ZFC website comes in part from a cooperative data exchange program of the MLS in which this Broker participates. The real estate displayed may not be all of the homes in the database, or all of the properties listed with Brokers participating in the cooperative data exchange program. Homes for sale that are listed by Brokers other than this Broker are marked with either the listing Broker's name or the MLS name or a logo provided by the MLS and the details page about such properties includes the name of the listing Brokers. Information provided is thought to be reliable but is not guaranteed to be accurate; you are advised to verify facts that are important to you. No warranties, expressed or implied, are provided for the data herein, or for their use or interpretation by the user. ZFC, the Florida Association of Realtors and its cooperating Multiple Listing Services do not create, control or review the property data displayed herein and take no responsibility for the content of such records. Federal law including the fair housing act prohibits discrimination on the basis of race, color, religion, sex, handicap, familial status or national origin in the sale, rental or financing of housing. IDX information is provided exclusively for personal, non-commercial use, and may not be used for any purpose other than to identify prospective properties consumers may be interested in purchasing. Information is deemed reliable but not guaranteed.
-
- Palm Beach
- Boca Raton
- Highland Beach
- Delray Beach
- Boynton Beach
- Lake Worth
- Wellington
- West Palm Beach
- Palm Beach Gardens
- Jupiter
- Singer Island
- Broward
- Fort Lauderdale
- Parkland
- Coral Springs
- Davie
- Weston
- Plantation
- Pembroke Pines
- Southwest Ranches
- Hillsboro Beach
- Miami/Dade
- Miami
- Miami Beach
- Aventura
- Sunny Isles
- Bal Harbour
- Surfside
- Coral Gables
- Treasure Coast
- Port Saint Lucie
- Fort Pierce
- Palm City
- Jensen Beach
- Vero Beach
- Stuart
- Hobe Sound
- Gulf Coast
- Naples
- Marco Island
- Fort Myers
- Bonita Springs
- Sarasota
- Tampa
- Clearwater





