202 BEDFORD STREET SUN CITY CENTER FL 33573
See Also...
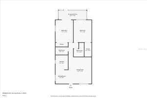
Overview of 202 Bedford St #49
No
Don't miss this condo for sale in Kings Point! One or more photo(s) has been virtually staged. Embrace the sun-kissed retirement youve worked so hard for in the premier 55+ active adult destination of sun city center, florida. This this 2-bedroom, 2-bathroom condo is the perfect canvas for your personal touch, offering a clean and bright living space with a practical layout that truly maximizes the florida sunshine. You will immediately appreciate the easy-to-maintain flooring, featuring a mix of tile and vinyl with absolutely no carpet throughout the homeideal for keeping things cool and simple. The dining room boasts plenty of natural light with space to gather for a family meal! the spacious living area flows beautifully and is filled with an abundance of natural light, creating an airy atmosphere that feels open and welcoming. Step through to your private, screened-in porch to enjoy the gentle afternoon breeze in total comfort. And dont forget to utilize your dedicated covered carport space to keep your vehicle protected from the elements. This community haven offers an incredible lifestyle where your daily worries melt away, especially since this community includes essential cable, high-speed internet, and convenient community transportation right in your monthly fees. Imagine starting your mornings with a peaceful stroll along the beautiful bike and walking paths or catching up with neighbors at one of the two vibrant community pools. whether you're looking to stay active on the tennis and pickleball courts or enjoy a friendly afternoon of shuffleboard, this community is designed to keep you moving and engaged. Life here is made even easier by the unique golf cart-friendly culture, allowing you to zip over to the on-site restaurant for a delicious meal or visit one of the active clubhouses without ever needing to start your car. With world-class medical facilities, shopping, and dining all accessible by your preferred electric ride, youll quickly see why so many choose this safe and welcoming neighborhood for their best years. beyond the gates, you are perfectly situated in the heart of the tampa bay-sarasota corridor, putting you just minutes from professional sports, high-end entertainment, and the breathtaking white sand beaches of the gulf coast. Experience the perfect blend of small-town charm and resort-style luxury in a place that truly celebrates your freedom and vitality.
This lovely condo was built in 1973 and features 2 bedrooms, and 2 full bathrooms. This condo for sale is 1,068 square feet, with 960 sq ft being air conditioned living space. The condo does not have a private swimming pool.
Directions to this property are as follows: Exit I-75: Take Exit 240 (state Road 674/sun City Center Boulevard) And Head East Toward Sun City Center. Turn Onto Kings Boulevard: Drive Approximately One Mile And Turn Right Onto Kings Boulevard To Enter The Kings Point Gate. Navigate The Community: Once Through The Gate, Stay On Kings Boulevard And Take The First Left Onto Bedford Trail. Arrive At Bedford: Follow Bedford Trail To The End, Then Turn Right To Reach The Parking Area For The Units.
Please contact your ZFC agent for more information about MLS# MFRTB8463987 or any other condos for sale in Sun City Center or elsewhere in the Hillsborough County area.
202 Bedford Street Price Calculator
The payment calculator figures for 202 Bedford St #49 should be used as an estimate only. Loan terms including interest rate, and required downpayment will vary with each lender and/or individual. RE taxes for this condo for sale are estimated based on the actual property taxes for this property for the tax year 2024 which are $29 but will likely change when this condo sells. These estimations are calculated from a list price of $110,000 and a 25% down payment and do not include homeowners insurance which will vary greatly depending on the condo characteristics and location.
Recent Condo Sales near 202 Bedford Street
MLS# MFRTB8463987 Listing History
Hillsborough County Schools
Elementary School
Middle School
High School
Public Transportation
Hillsborough Area Regional Transit:
Route 571 HARTFlex South County
Hillsborough Area Regional Transit:
Route 571 HARTFlex South County
Hillsborough Area Regional Transit:
Route 571 HARTFlex South County
Hillsborough Area Regional Transit:
Route 571 HARTFlex South County
Hillsborough Area Regional Transit:
Map of 202 Bedford Street Sun City Center FL 33573
The data relating to homes for sale or lease or other real estate for sale or for rent on the ZFC website comes in part from a cooperative data exchange program of the MLS in which this Broker participates. The real estate displayed may not be all of the homes in the database, or all of the properties listed with Brokers participating in the cooperative data exchange program. Homes for sale that are listed by Brokers other than this Broker are marked with either the listing Broker's name or the MLS name or a logo provided by the MLS and the details page about such properties includes the name of the listing Brokers. Information provided is thought to be reliable but is not guaranteed to be accurate; you are advised to verify facts that are important to you. No warranties, expressed or implied, are provided for the data herein, or for their use or interpretation by the user. ZFC, the Florida Association of Realtors and its cooperating Multiple Listing Services do not create, control or review the property data displayed herein and take no responsibility for the content of such records. Federal law including the fair housing act prohibits discrimination on the basis of race, color, religion, sex, handicap, familial status or national origin in the sale, rental or financing of housing. IDX information is provided exclusively for personal, non-commercial use, and may not be used for any purpose other than to identify prospective properties consumers may be interested in purchasing. Information is deemed reliable but not guaranteed.
-
- Palm Beach
- Boca Raton
- Highland Beach
- Delray Beach
- Boynton Beach
- Lake Worth
- Wellington
- West Palm Beach
- Palm Beach Gardens
- Jupiter
- Singer Island
- Broward
- Fort Lauderdale
- Parkland
- Coral Springs
- Davie
- Weston
- Plantation
- Pembroke Pines
- Southwest Ranches
- Hillsboro Beach
- Miami/Dade
- Miami
- Miami Beach
- Aventura
- Sunny Isles
- Bal Harbour
- Surfside
- Coral Gables
- Treasure Coast
- Port Saint Lucie
- Fort Pierce
- Palm City
- Jensen Beach
- Vero Beach
- Stuart
- Hobe Sound
- Gulf Coast
- Naples
- Marco Island
- Fort Myers
- Bonita Springs
- Sarasota
- Tampa
- Clearwater





