17100 N Bay Rd 1604 Sunny Isles Beach FL 33160
See Also...
Overview of 17100 N Bay Rd 1604
No
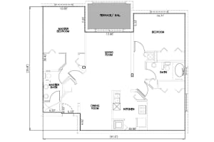
Welcome to waterfront living in the heart of sunny isles beach. (Miami area). This 3-bedroom, 2-bath corner unit offers a waterfront location with direct water views and abundant natural light throughout. Enjoy intracoastal, bay, city, and pool views from large windows and a private balcony. the residence features approximately 1,264 sq ft of open living space with tiled living and dining areas, newly carpeted bedrooms, granite countertops, stainless-steel appliances, walk-in closets, and an in-unit washer and dryer. The layout is functional and comfortable for everyday living or entertaining, with the kitchen and living areas flowing seamlessly together. Located in the porto bellagio condominium, a gated community with 24/7 security, residents enjoy amenities including a heated pool, jacuzzi/spa, fully equipped gym, childrens playroom, and business center. The unit includes two assigned parking spaces. Just a short distance to the beach and minutes from restaurants, shops, cafés, and everyday conveniences. Ideal as a primary residence, second home, or investment opportunity in one of sunny isles beachs most desirable waterfront communities.
This lovely condo was built in 2003 and features 3 bedrooms, and 2 full bathrooms. This condo for sale is 1,264 square feet, with 1,264 sq ft being air conditioned living space. The condo2 assigned parking garage spots and does not have a private swimming pool, although there is a community pool in the complex for use by residents.
Waterfront unit. 3/2 in Sunny Isles. Ok to lease. 2 Parking spaces. Washer and dryer inside the unit.
Directions to this property are as follows: Please Register With The Guard To Park Inside. It Is Free.
Please contact your ZFC agent for more information about MLS# AX-11936668 or any other condos for sale in Sunny Isles Beach or elsewhere in the Miami-Dade County area.
17100 N Bay Rd 1604 Price Calculator
The payment calculator figures for 17100 N Bay Rd 1604 should be used as an estimate only. Loan terms including interest rate, and required downpayment will vary with each lender and/or individual. RE taxes for this condo for sale are estimated based on the actual property taxes for this property for the tax year 2025 which are $9,094 but will likely change when this condo sells. These estimations are calculated from a list price of $736,500 and a 25% down payment and do not include homeowners insurance which will vary greatly depending on the condo characteristics and location.
Recent Condo Sales near 17100 N Bay Rd 1604
MLS# AX-11936668 Listing History
Map of 17100 N Bay Rd 1604 Sunny Isles Beach FL 33160
Similar communities in Sunny Isles Beach
The data relating to homes for sale or lease or other real estate for sale or for rent on the ZFC website comes in part from a cooperative data exchange program of the MLS in which this Broker participates. The real estate displayed may not be all of the homes in the database, or all of the properties listed with Brokers participating in the cooperative data exchange program. Homes for sale that are listed by Brokers other than this Broker are marked with either the listing Broker's name or the MLS name or a logo provided by the MLS and the details page about such properties includes the name of the listing Brokers. Information provided is thought to be reliable but is not guaranteed to be accurate; you are advised to verify facts that are important to you. No warranties, expressed or implied, are provided for the data herein, or for their use or interpretation by the user. ZFC, the Florida Association of Realtors and its cooperating Multiple Listing Services do not create, control or review the property data displayed herein and take no responsibility for the content of such records. Federal law including the fair housing act prohibits discrimination on the basis of race, color, religion, sex, handicap, familial status or national origin in the sale, rental or financing of housing. IDX information is provided exclusively for personal, non-commercial use, and may not be used for any purpose other than to identify prospective properties consumers may be interested in purchasing. Information is deemed reliable but not guaranteed.
-
- Palm Beach
- Boca Raton
- Highland Beach
- Delray Beach
- Boynton Beach
- Lake Worth
- Wellington
- West Palm Beach
- Palm Beach Gardens
- Jupiter
- Singer Island
- Broward
- Fort Lauderdale
- Parkland
- Coral Springs
- Davie
- Weston
- Plantation
- Pembroke Pines
- Southwest Ranches
- Hillsboro Beach
- Miami/Dade
- Miami
- Miami Beach
- Aventura
- Sunny Isles
- Bal Harbour
- Surfside
- Coral Gables
- Treasure Coast
- Port Saint Lucie
- Fort Pierce
- Palm City
- Jensen Beach
- Vero Beach
- Stuart
- Hobe Sound
- Gulf Coast
- Naples
- Marco Island
- Fort Myers
- Bonita Springs
- Sarasota
- Tampa
- Clearwater





