13706 ORANGE SUNSET DRIVE TAMPA FL 33618
See Also...
Overview of 13706 Orange Sunset Dr #13706
No
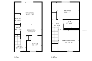
Don't miss this condo for sale in Whispering Oaks! Stop scrolling. This is not your typical carrollwood townhouse. welcome to 13706 orange sunset dr, a rare two-story townhome in Whispering Oaks on lake magdalene, where most surrounding units are single-story. Enjoy added privacy, functional separation of space, and the feel of a true home. this 2-bedroom, 1.5-bathroom residence features a beautifully updated 2024 kitchen, in-unit washer and dryer, and a bright, comfortable layout with living space downstairs and bedrooms upstairs. Step outside to your private pavered lanai overlooking a peaceful canal with direct access to lake magdalene, perfect for morning coffee, sunset views, or hopping on your boat. located in the heart of carrollwood, this home offers a quiet setting tucked away from busy roads, while still being just minutes from veterans expressway, dale mabry highway, and tampa international airport. Enjoy easy access to shopping, dining, and local attractions including busch gardens tampa bay, downtown tampa, and the gulf beaches. the community features an affordable hoa and amenities including a gated entrance, pool, clubhouse, tennis courts, dog park, playground, and private boat ramp. a standout feature is the two parking spaces, including one covered, which is a rare and valuable perk in this community. whether youÂ’re looking for a primary residence, seasonal retreat, or investment opportunity, this home delivers true florida lifestyle living at an approachable price point. priced to sell. Schedule your private showing today.
This lovely condo was built in 1976 and features 2 bedrooms, and 1 full bathrooms plus 1 half bath. This condo for sale is 928 square feet, with 928 sq ft being air conditioned living space. The condo does not have a private swimming pool.
Directions to this property are as follows: From Tpa: 1. Leave The Airport Follow Signs Out Of Tpa And Get On Fl-589 N (veterans Expressway) 2. Head North Stay On Veterans Expressway North For About 8–10 Miles 3. Exit Onto Dale Mabry Hwy Take Exit Toward N Dale Mabry Hwy (fl-597) Turn Right (north) Onto Dale Mabry 4. Go East On Fletcher Turn Right Onto W Fletcher Ave Drive About 1–2 Miles 5. Turn Into The Community Turn Left Onto Orange Sunset Dr Continue Straight About 1 Mile Into Whispering Oaks (gated Community) 6. Inside The Community Go Through The Gate Follow Internal Roads (your Specific Building/unit Will Be Inside).
Please contact your ZFC agent for more information about MLS# MFRTB8491181 or any other condos for sale in Tampa or elsewhere in the Hillsborough County area.
13706 Orange Sunset Dr Price Calculator
The payment calculator figures for 13706 Orange Sunset Dr #13706 should be used as an estimate only. Loan terms including interest rate, and required downpayment will vary with each lender and/or individual. RE taxes for this condo for sale are estimated based on the actual property taxes for this property for the tax year 2025 which are $1,985 but will likely change when this condo sells. These estimations are calculated from a list price of $189,999 and a 25% down payment and do not include homeowners insurance which will vary greatly depending on the condo characteristics and location.
Recent Condo Sales near 13706 Orange Sunset Dr
MLS# MFRTB8491181 Listing History
Hillsborough County Schools
Elementary School
Middle School
High School
Public Transportation
Hillsborough Area Regional Transit:
Route 33 Fletcher Avenue/Northdale
Hillsborough Area Regional Transit:
Route 33 Fletcher Avenue/Northdale
Hillsborough Area Regional Transit:
Route 33 Fletcher Avenue/Northdale
Hillsborough Area Regional Transit:
Route 33 Fletcher Avenue/Northdale
Hillsborough Area Regional Transit:
Map of 13706 Orange Sunset Dr Tampa FL 33618
Similar communities in Tampa
The data relating to homes for sale or lease or other real estate for sale or for rent on the ZFC website comes in part from a cooperative data exchange program of the MLS in which this Broker participates. The real estate displayed may not be all of the homes in the database, or all of the properties listed with Brokers participating in the cooperative data exchange program. Homes for sale that are listed by Brokers other than this Broker are marked with either the listing Broker's name or the MLS name or a logo provided by the MLS and the details page about such properties includes the name of the listing Brokers. Information provided is thought to be reliable but is not guaranteed to be accurate; you are advised to verify facts that are important to you. No warranties, expressed or implied, are provided for the data herein, or for their use or interpretation by the user. ZFC, the Florida Association of Realtors and its cooperating Multiple Listing Services do not create, control or review the property data displayed herein and take no responsibility for the content of such records. Federal law including the fair housing act prohibits discrimination on the basis of race, color, religion, sex, handicap, familial status or national origin in the sale, rental or financing of housing. IDX information is provided exclusively for personal, non-commercial use, and may not be used for any purpose other than to identify prospective properties consumers may be interested in purchasing. Information is deemed reliable but not guaranteed.
-
- Palm Beach
- Boca Raton
- Highland Beach
- Delray Beach
- Boynton Beach
- Lake Worth
- Wellington
- West Palm Beach
- Palm Beach Gardens
- Jupiter
- Singer Island
- Broward
- Fort Lauderdale
- Parkland
- Coral Springs
- Davie
- Weston
- Plantation
- Pembroke Pines
- Southwest Ranches
- Hillsboro Beach
- Miami/Dade
- Miami
- Miami Beach
- Aventura
- Sunny Isles
- Bal Harbour
- Surfside
- Coral Gables
- Treasure Coast
- Port Saint Lucie
- Fort Pierce
- Palm City
- Jensen Beach
- Vero Beach
- Stuart
- Hobe Sound
- Gulf Coast
- Naples
- Marco Island
- Fort Myers
- Bonita Springs
- Sarasota
- Tampa
- Clearwater





