501 SPARKMAN AVENUE TAMPA FL 33602





Overview of 501 E Sparkman Ave
No
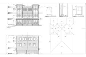
One or more photo(s) has been virtually staged. Welcome to tampa heights! This gem located in historic tampa heights on a corner lot surrounded by beautiful natural landscaping and trees.this bungalow perfectly blends historic charm with modern comfort in one of tampas most sought-after neighborhoods. The home offers warmth, character, and convenience enjoy the short walks to armature works, tampa riverwalk, downtown tampa, ybor city, and water street, university of tampa! Centrally located close to major transits and amenities like tampa international airport, international plaza, westshore mall, hyde park village, soho, channel side and many more! 30 minute drive to the beautiful warm florida beaches! All brand new appliances included! This property is also zoned rm-24 allowing you to potentially build 3 to 4 new construction townhomes on a corner lot! Flood zone x. Your choice to live in one while you can sell or rent out the others sounds like a good investment to many. The owner has gone through the process to get approval ca for 2 new townhomes on this site and is also offering 2 unit w 3-story height townhome plans ,3 unit townhome plans w 3-story height, and a 4 unit townhome plans with this deal saving you time and money! Rent out the current house for a steady cash flow as you work on your building plans. Additional documents available survey, tree survey, architectural plans all included. Rear alley access on this corner lot makes it larger and more flexible than most neighborhood lots. The potential for additional density or more units under planned development, subject to city approval. New ymca for the neighborhood coming soon and a planned streetcar extension into tampa heights will further enhance connectivity to the beautiful downtown tampa. Excellent opportunity for builders, investors, to take advantage on this premier corner lot in tampa heights.
This lovely single family home was built in 1994 and features 3 bedrooms, and 2 full bathrooms. This home for sale is 1,400 square feet, with 1,350 sq ft being air conditioned living space. The home has a does not have a private swimming pool.
Directions to this property are as follows: From I-275, Take Exit 45a Towards Downtown. Turn North On N Tampa St, Then East On E Palm Ave. Left On N Central Ave And Right On E Sparkman Ave. Property Is The Corner Lot With House. Please Use Gps.
Please contact your ZFC agent for more information about MLS# MFRTB8438794 or any other homes for sale in Tampa or elsewhere in the Hillsborough County area.
501 E Sparkman Ave Price Calculator
The payment calculator figures for 501 E Sparkman Ave should be used as an estimate only. Loan terms including interest rate, and required downpayment will vary with each lender and/or individual. RE taxes for this home for sale are estimated based on the actual property taxes for this property for the tax year 2024 which are $6,850 but will likely change when this home sells. These estimations are calculated from a list price of $699,000 and a 25% down payment and do not include homeowners insurance which will vary greatly depending on the home characteristics and location.
Recent Home Sales near 501 E Sparkman Ave
MLS# MFRTB8438794 Listing History
Hillsborough County Schools
Elementary School
Middle School
High School
Public Transportation
Hillsborough Area Regional Transit:
Hillsborough Area Regional Transit:
Hillsborough Area Regional Transit:
Hillsborough Area Regional Transit:
Route 400 Nebraska Avenue (Metrorapid)
Hillsborough Area Regional Transit:

Map of 501 E Sparkman Ave Tampa FL 33602
Similar communities in Tampa
The data relating to homes for sale or lease or other real estate for sale or for rent on the ZFC website comes in part from a cooperative data exchange program of the MLS in which this Broker participates. The real estate displayed may not be all of the homes in the database, or all of the properties listed with Brokers participating in the cooperative data exchange program. Homes for sale that are listed by Brokers other than this Broker are marked with either the listing Broker's name or the MLS name or a logo provided by the MLS and the details page about such properties includes the name of the listing Brokers. Information provided is thought to be reliable but is not guaranteed to be accurate; you are advised to verify facts that are important to you. No warranties, expressed or implied, are provided for the data herein, or for their use or interpretation by the user. ZFC, the Florida Association of Realtors and its cooperating Multiple Listing Services do not create, control or review the property data displayed herein and take no responsibility for the content of such records. Federal law including the fair housing act prohibits discrimination on the basis of race, color, religion, sex, handicap, familial status or national origin in the sale, rental or financing of housing. IDX information is provided exclusively for personal, non-commercial use, and may not be used for any purpose other than to identify prospective properties consumers may be interested in purchasing. Information is deemed reliable but not guaranteed.
-
- Palm Beach
- Boca Raton
- Highland Beach
- Delray Beach
- Boynton Beach
- Lake Worth
- Wellington
- West Palm Beach
- Palm Beach Gardens
- Jupiter
- Singer Island
- Broward
- Fort Lauderdale
- Parkland
- Coral Springs
- Davie
- Weston
- Plantation
- Pembroke Pines
- Southwest Ranches
- Hillsboro Beach
- Miami/Dade
- Miami
- Miami Beach
- Aventura
- Sunny Isles
- Bal Harbour
- Surfside
- Coral Gables
- Treasure Coast
- Port Saint Lucie
- Fort Pierce
- Palm City
- Jensen Beach
- Vero Beach
- Stuart
- Hobe Sound
- Gulf Coast
- Naples
- Marco Island
- Fort Myers
- Bonita Springs
- Sarasota
- Tampa
- Clearwater
