6935 LAKE PLACE COURT TAMPA FL 33634 Sold 12/10/2025
See Also...
Overview of 6935 Lake Place Ct #6935
No
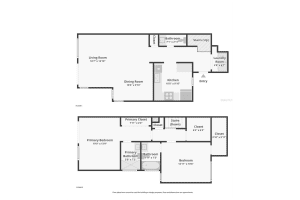
Don't miss this condo for sale in Lake Place! Enjoy a low-maintenance lifestyle in Lake Place, a gated community tucked away in town 'n' country. This townhouse style condo is unique from any other in the community! It has a neighbor on only one side allowing for wrap around views of mature landscaping & the lake, and it is situated directly across from the community mailboxes and recently updated swimming pool for ultimate convenience! Inside the home you will find many updates, including the gorgeous kitchen! The open floor plan allows for seamless interaction between the kitchen, dining room, living room and screened-in patio. Upstairs there are 2 bedrooms - each with its own updated bathroom. The primary bedroom has vaulted ceilings with a ceiling fan, an oversized closet and a balcony to enjoy more views of the lake and surrounding tree tops. The second bedroom has a large walk-in closet and ceiling fan. This home has a lot of storage space! Inside, there is a large storage closet on the second floor accessed from the hallway, and outside there is another large walk-in storage closet accessed near the driveway. The driveway has room for at least 2 vehicles including 1 covered parking space. Lake Place residents enjoy access to the lake including fishing & kayaking. No flood insurance required - located in flood zone "x." the monthly association fee for this unit is $561 and includes water, basic cable, exterior pest control, termite protection, exterior maintenance, exterior insurance, and landscaping maintenance. One pet per unit is allowed, including dogs 20 lbs & under. Owners may rent, with approval from the association. This community is located approximately a half mile from numerous restaurants, a wal-mart and a publix. Tampa international airport is about a 15 minute drive and downtown tampa & the channelside district are about a 20-30 minute drive away.
This lovely condo was built in 1985 and features 2 bedrooms, and 2 full bathrooms plus 1 half bath. This condo for sale is 1,234 square feet, with 1,234 sq ft being air conditioned living space. The condo does not have a private swimming pool.
Directions to this property are as follows: From The Veterans Expressway & Waters Ave. Drive West For Approximately 1 Mile. Turn Right On Hulsey Rd. Drive 1/2 Mile And Turn Into The Community At The Gate. After Entering The Gate Immediately Turn Right. Turn Left On The Next Street, Lake Place Court. 6935 Is The Unit On The Corner.
Please contact your ZFC agent for more information about MLS# MFRTB8440811 or any other condos for sale in Tampa or elsewhere in the Hillsborough County area.
6935 Lake Place Ct #6935 Price Calculator
The payment calculator figures for 6935 Lake Place Ct #6935 should be used as an estimate only. Loan terms including interest rate, and required downpayment will vary with each lender and/or individual. RE taxes for this condo for sale are estimated based on the actual property taxes for this property for the tax year 2024 which are $2,207 but will likely change when this condo sells. These estimations are calculated from a list price of $228,650 and a 25% down payment and do not include homeowners insurance which will vary greatly depending on the condo characteristics and location.
Recent Condo Sales near 6935 Lake Place Ct #6935
MLS# MFRTB8440811 Listing History
Hillsborough County Schools
Elementary School
Middle School
High School
Public Transportation
Hillsborough Area Regional Transit:
Hillsborough Area Regional Transit:
Hillsborough Area Regional Transit:
Hillsborough Area Regional Transit:
Hillsborough Area Regional Transit:
Map of 6935 Lake Place Ct #6935 Tampa FL 33634
Similar Condominium Buildings Tampa
The data relating to homes for sale or lease or other real estate for sale or for rent on the ZFC website comes in part from a cooperative data exchange program of the MLS in which this Broker participates. The real estate displayed may not be all of the homes in the database, or all of the properties listed with Brokers participating in the cooperative data exchange program. Homes for sale that are listed by Brokers other than this Broker are marked with either the listing Broker's name or the MLS name or a logo provided by the MLS and the details page about such properties includes the name of the listing Brokers. Information provided is thought to be reliable but is not guaranteed to be accurate; you are advised to verify facts that are important to you. No warranties, expressed or implied, are provided for the data herein, or for their use or interpretation by the user. ZFC, the Florida Association of Realtors and its cooperating Multiple Listing Services do not create, control or review the property data displayed herein and take no responsibility for the content of such records. Federal law including the fair housing act prohibits discrimination on the basis of race, color, religion, sex, handicap, familial status or national origin in the sale, rental or financing of housing. IDX information is provided exclusively for personal, non-commercial use, and may not be used for any purpose other than to identify prospective properties consumers may be interested in purchasing. Information is deemed reliable but not guaranteed.
-
- Palm Beach
- Boca Raton
- Highland Beach
- Delray Beach
- Boynton Beach
- Lake Worth
- Wellington
- West Palm Beach
- Palm Beach Gardens
- Jupiter
- Singer Island
- Broward
- Fort Lauderdale
- Parkland
- Coral Springs
- Davie
- Weston
- Plantation
- Pembroke Pines
- Southwest Ranches
- Hillsboro Beach
- Miami/Dade
- Miami
- Miami Beach
- Aventura
- Sunny Isles
- Bal Harbour
- Surfside
- Coral Gables
- Treasure Coast
- Port Saint Lucie
- Fort Pierce
- Palm City
- Jensen Beach
- Vero Beach
- Stuart
- Hobe Sound
- Gulf Coast
- Naples
- Marco Island
- Fort Myers
- Bonita Springs
- Sarasota
- Tampa
- Clearwater





