1405 SKYLINE COURT TAVARES FL 32778
See Also...
Overview of 1405 Skyline Ct
No
Don't miss this property for sale in Lake Frances Estates! Under contract-accepting backup offers. This is the Lake Frances Estates home you have been searching for. You own the land in this golf cart friendly community. This palm harbor house checks all of the boxes. Brand new floors throughout the home installed february 2026. Beautiful quartz countertops, quality cabinets, stainless steel appliances, and a big pantry makes this gourmet kitchen perfect for entertaining. Huge primary bedroom with 2 spacious closets and en-suite bathroom with seated shower was built with your comfort in mind. The other 2 generously sized bedrooms are perfect for friends and family. The massive living room is open and big enough for all of your favorite furnishings. Double pane lifetime windows installed 2023 with transferable lifetime warranty. High quality siding installed 2024. The ac is only 4 years old. It has a metal roof for long lasting protection and it was resealed in 2024. Rain soft water softener treats you to the best water. 2 separate laundry hook ups are in the kitchen and in the outside storage area as well. It is light, bright, clean and easy to maintain and most importantly ready to move in as soon as you close. Enjoy an afternoon of fishing or fun nights playing bingo. Enjoy the luxury of having both indoor and outdoor heated pools to choose from. Shuffleboards and pool tables are all included in this community. Card games and movie nights at the clubhouse. This community has too many events and perks to list them all. Wooten park, mt dora and eustis are all just minutes away. All three have street fairs and live music. Orlando and sanford airports and disney are all about 30 miles away. Both coasts are only about 90 minutes away. Don't let this gem pass you by. The buyer and/or buyer's agent shall be obligated to diligently investigate, verify, and confirm all pertinent aspects of the subject property. Please note that while all information provided is deemed to be reliable, its accuracy and completeness are not warranted or guaranteed.
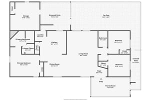
This lovely property was built in 1980 and features 3 bedrooms, and 2 full bathrooms. This property for sale is 2,785 square feet, with 1,640 sq ft being air conditioned living space. The property has a does not have a private swimming pool, although there is a community pool in the complex for use by residents.
Directions to this property are as follows: From 441 Turn South Onto St Clair Abrams And Make A Left Onto Lake Frances Blvd. Follow It To Mohawk Circle (stop Sign)and Make A Right. Take A Left On Skyline Dr. Turn Left Onto Skyline Ct (1 Way Horseshoe) And Follow Around Just Past The Bend. House Will Be On Your Right.
Please contact your ZFC agent for more information about MLS# MFRG5107843 or any other properties for sale in Tavares or elsewhere in the Lake County area.
1405 Skyline Ct Price Calculator
The payment calculator figures for 1405 Skyline Ct should be used as an estimate only. Loan terms including interest rate, and required downpayment will vary with each lender and/or individual. RE taxes for this property for sale are estimated based on the actual property taxes for this property for the tax year 2026 which are $0 but will likely change when this property sells. These estimations are calculated from a list price of $240,000 and a 25% down payment and do not include homeowners insurance which will vary greatly depending on the property characteristics and location.
Recent Property Sales near 1405 Skyline Ct
MLS# MFRG5107843 Listing History
Public Transportation
LakeXpress:
LakeXpress:
LakeXpress:
LakeXpress:
LakeXpress:
Map of 1405 Skyline Ct Tavares FL 32778
The data relating to homes for sale or lease or other real estate for sale or for rent on the ZFC website comes in part from a cooperative data exchange program of the MLS in which this Broker participates. The real estate displayed may not be all of the homes in the database, or all of the properties listed with Brokers participating in the cooperative data exchange program. Homes for sale that are listed by Brokers other than this Broker are marked with either the listing Broker's name or the MLS name or a logo provided by the MLS and the details page about such properties includes the name of the listing Brokers. Information provided is thought to be reliable but is not guaranteed to be accurate; you are advised to verify facts that are important to you. No warranties, expressed or implied, are provided for the data herein, or for their use or interpretation by the user. ZFC, the Florida Association of Realtors and its cooperating Multiple Listing Services do not create, control or review the property data displayed herein and take no responsibility for the content of such records. Federal law including the fair housing act prohibits discrimination on the basis of race, color, religion, sex, handicap, familial status or national origin in the sale, rental or financing of housing. IDX information is provided exclusively for personal, non-commercial use, and may not be used for any purpose other than to identify prospective properties consumers may be interested in purchasing. Information is deemed reliable but not guaranteed.
-
- Palm Beach
- Boca Raton
- Highland Beach
- Delray Beach
- Boynton Beach
- Lake Worth
- Wellington
- West Palm Beach
- Palm Beach Gardens
- Jupiter
- Singer Island
- Broward
- Fort Lauderdale
- Parkland
- Coral Springs
- Davie
- Weston
- Plantation
- Pembroke Pines
- Southwest Ranches
- Hillsboro Beach
- Miami/Dade
- Miami
- Miami Beach
- Aventura
- Sunny Isles
- Bal Harbour
- Surfside
- Coral Gables
- Treasure Coast
- Port Saint Lucie
- Fort Pierce
- Palm City
- Jensen Beach
- Vero Beach
- Stuart
- Hobe Sound
- Gulf Coast
- Naples
- Marco Island
- Fort Myers
- Bonita Springs
- Sarasota
- Tampa
- Clearwater





