1215 Admirals Walk Vero Beach FL 32963 Sold 06/14/2021
See Also...
Overview of 1215 Admirals Walk, Vero Beach, Fl 32963
No
Don't miss this home for sale in Castaway Cove! ''to be constructed'' location,location, location. Just a 1000 ft walk to the beach. This east of a1a house is in the desirable guard gated community of Castaway Cove, with deeded beach and riverfront access with a low hoa. This lifestyle homes house can be designed by you. Pick your own options and features. This is an example of a home you can build. Buyer to verify prices w/builder.
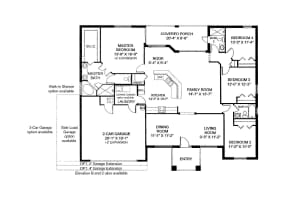
This lovely single family home was built in 2020 and features 4 bedrooms, and 3 full bathrooms. This home for sale is 2,187 square feet, with 2,187 sq ft being air conditioned living space. The home has a 2 car garage and does not have a private swimming pool.
Directions to this property are as follows: A1a South Of 17th St Bridge To Castaway Cove 6 On The Right. Home To The Right Of The Gate.
Please contact your ZFC agent for more information about MLS# RX-10625915 or any other homes for sale in Vero Beach or elsewhere in the Indian River County area.
1215 Admirals Walk Price Calculator
The payment calculator figures for 1215 Admirals Walk, Vero Beach, Fl 32963 should be used as an estimate only. Loan terms including interest rate, and required downpayment will vary with each lender and/or individual. RE taxes for this home for sale are estimated based on the actual property taxes for this property for the tax year 2015 which are $3,323 but will likely change when this home sells. These estimations are calculated from a list price of $671,431 and a 25% down payment and do not include homeowners insurance which will vary greatly depending on the home characteristics and location.
Recent Home Sales near 1215 Admirals Walk
MLS# RX-10625915 Listing History
Indian River County Schools
Elementary School
Middle School
High School
Map of 1215 Admirals Walk Vero Beach FL 32963
Similar communities in Vero Beach
The data relating to homes for sale or lease or other real estate for sale or for rent on the ZFC website comes in part from a cooperative data exchange program of the MLS in which this Broker participates. The real estate displayed may not be all of the homes in the database, or all of the properties listed with Brokers participating in the cooperative data exchange program. Homes for sale that are listed by Brokers other than this Broker are marked with either the listing Broker's name or the MLS name or a logo provided by the MLS and the details page about such properties includes the name of the listing Brokers. Information provided is thought to be reliable but is not guaranteed to be accurate; you are advised to verify facts that are important to you. No warranties, expressed or implied, are provided for the data herein, or for their use or interpretation by the user. ZFC, the Florida Association of Realtors and its cooperating Multiple Listing Services do not create, control or review the property data displayed herein and take no responsibility for the content of such records. Federal law including the fair housing act prohibits discrimination on the basis of race, color, religion, sex, handicap, familial status or national origin in the sale, rental or financing of housing. IDX information is provided exclusively for personal, non-commercial use, and may not be used for any purpose other than to identify prospective properties consumers may be interested in purchasing. Information is deemed reliable but not guaranteed.
-
- Palm Beach
- Boca Raton
- Highland Beach
- Delray Beach
- Boynton Beach
- Lake Worth
- Wellington
- West Palm Beach
- Palm Beach Gardens
- Jupiter
- Singer Island
- Broward
- Fort Lauderdale
- Parkland
- Coral Springs
- Davie
- Weston
- Plantation
- Pembroke Pines
- Southwest Ranches
- Hillsboro Beach
- Miami/Dade
- Miami
- Miami Beach
- Aventura
- Sunny Isles
- Bal Harbour
- Surfside
- Coral Gables
- Treasure Coast
- Port Saint Lucie
- Fort Pierce
- Palm City
- Jensen Beach
- Vero Beach
- Stuart
- Hobe Sound
- Gulf Coast
- Naples
- Marco Island
- Fort Myers
- Bonita Springs
- Sarasota
- Tampa
- Clearwater





