605/607 4TH DRIVE WILLISTON FL 32696
Overview of 607 Se 4th Dr #a
No
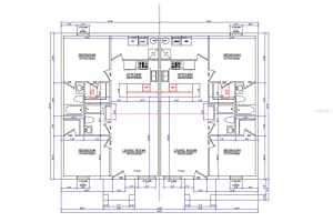
Under construction. A rare opportunity in the heart of williston this single unit within a soon-to-be-completed duplex offers all the appeal of new construction with lasting investment value! Under construction by the top builder and plumbing company in the 352 area code and scheduled for completion in late october 2025, this craftsman-style home is built with durable concrete block construction on a quiet dead-end street, offering both charm and long-term functionality. Inside, a well-planned 2-bedroom, 2-bath layout features vaulted ceilings that enhance the open-concept living and kitchen area. The kitchen is outfitted with stone countertops, a built-in breakfast bar, and a full suite of essential appliances including a stove, range, microwave, dishwasher, and garbage disposal, balancing everyday convenience with modern style. Luxury vinyl plank flooring runs throughout for cohesive design and easy upkeep. The primary bedroom is designed for comfort and privacy, with a spacious walk-in closet and an en-suite bath. A dedicated laundry room with washer/dryer hookups adds to the homes functionality, while the covered front porch and fenced backyard provide valuable outdoor living spaces. Centrally located just minutes from willistons main corridor and conveniently positioned between ocala and gainesville, this property is ideal for commuters or anyone seeking close access to shopping, dining, healthcare, and more. Whether you're looking for a low-maintenance personal residence or a smart rental investment, this individual unit combines quality finishes, modern design, and everyday practicality. Dont miss your chance to own a brand-new home in this up-and-coming location! Price reflects one side of the duplex. Additional unit is available for purchase, see om704808 for more information. Property is located just 20 minutes to wec and 14 minutes to hits.
This lovely property was built in 2025 and features 2 bedrooms, and 2 full bathrooms. This property for sale is 967 square feet, with 967 sq ft being air conditioned living space. The property has a does not have a private swimming pool.
Directions to this property are as follows: Hwy 27 North, Turn Left Onto Se 6th St, Turn Right Onto Se 5th Ave, Turn Left Onto Se 5th St, Turn Right Onto Se 6th Ave, Turn Left Onto Se 4th Dr.
Please contact your ZFC agent for more information about MLS# MFROM704611 or any other properties for sale in Williston or elsewhere in the Levy County area.
607 4th Dr Price Calculator
The payment calculator figures for 607 Se 4th Dr #a should be used as an estimate only. Loan terms including interest rate, and required downpayment will vary with each lender and/or individual. RE taxes for this property for sale are estimated based on the actual property taxes for this property for the tax year 2025 which are $3,201 but will likely change when this property sells. These estimations are calculated from a list price of $269,000 and a 25% down payment and do not include homeowners insurance which will vary greatly depending on the property characteristics and location.
Recent Property Sales near 607 4th Dr
MLS# MFROM704611 Listing History
Map of 607 4th Dr Williston FL 32696
The data relating to homes for sale or lease or other real estate for sale or for rent on the ZFC website comes in part from a cooperative data exchange program of the MLS in which this Broker participates. The real estate displayed may not be all of the homes in the database, or all of the properties listed with Brokers participating in the cooperative data exchange program. Homes for sale that are listed by Brokers other than this Broker are marked with either the listing Broker's name or the MLS name or a logo provided by the MLS and the details page about such properties includes the name of the listing Brokers. Information provided is thought to be reliable but is not guaranteed to be accurate; you are advised to verify facts that are important to you. No warranties, expressed or implied, are provided for the data herein, or for their use or interpretation by the user. ZFC, the Florida Association of Realtors and its cooperating Multiple Listing Services do not create, control or review the property data displayed herein and take no responsibility for the content of such records. Federal law including the fair housing act prohibits discrimination on the basis of race, color, religion, sex, handicap, familial status or national origin in the sale, rental or financing of housing. IDX information is provided exclusively for personal, non-commercial use, and may not be used for any purpose other than to identify prospective properties consumers may be interested in purchasing. Information is deemed reliable but not guaranteed.
-
- Palm Beach
- Boca Raton
- Highland Beach
- Delray Beach
- Boynton Beach
- Lake Worth
- Wellington
- West Palm Beach
- Palm Beach Gardens
- Jupiter
- Singer Island
- Broward
- Fort Lauderdale
- Parkland
- Coral Springs
- Davie
- Weston
- Plantation
- Pembroke Pines
- Southwest Ranches
- Hillsboro Beach
- Miami/Dade
- Miami
- Miami Beach
- Aventura
- Sunny Isles
- Bal Harbour
- Surfside
- Coral Gables
- Treasure Coast
- Port Saint Lucie
- Fort Pierce
- Palm City
- Jensen Beach
- Vero Beach
- Stuart
- Hobe Sound
- Gulf Coast
- Naples
- Marco Island
- Fort Myers
- Bonita Springs
- Sarasota
- Tampa
- Clearwater
