TBD 151ST TERRACE WILLISTON FL 32696
Overview of Tbd Ne 151st Ter
No
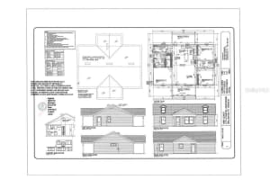
Pre-construction. To be built. Under construction pick your colors! | Qualifies for usda 100% financing | no hoa welcome to your future home! This beautiful new construction 3-bedroom, 2-bathroom home offers 1,380 square feet of thoughtfully designed living space with an open and split floorplanperfect for both everyday living and entertaining. Estimated completion by october/november 2025, and now is the perfect time to choose your colors and finishes! the spacious kitchen is a standout feature, showcasing real wood cabinetry, a large center island, granite countertops throughout, and stainless steel appliancesincluding the refrigerator. A separate dining room provides the perfect space for family meals and gatherings. the large owner's suite offers a walk-in closet and an elegant en suite bath with dual vanities and a walk-in shower. The home also features a spacious laundry/utility room, low-e windows, and a rear veranda ideal for relaxing outdoors. built with quality and comfort in mind, this home includes luxury vinyl plank flooring throughout (no carpet!) and tiled flooring in the bathrooms. The exterior features durable all-concrete construction with hardie board siding, a 14 seer a/c system, and a full landscaping package. enjoy peace of mind with a 1-year cosmetic warranty and 10-year structural warranty from the builder. No hoa restrictions and usda loan eligibility make this home even more appealing! photos are of a model homefinishes may vary. Dont miss your chance to personalize this beautiful new buildschedule a tour today!
This lovely single family home was built in 2025 and features 3 bedrooms, and 2 full bathrooms. This home for sale is 1,662 square feet, with 1,380 sq ft being air conditioned living space. The home has a does not have a private swimming pool.
Directions to this property are as follows: Us 27 Alt S, Turn Right Onto Ne 167th Ct, Turn Right Onto Fl 121 S, Turn Right Onto E Levy St, Turn Right Onto Ne 150th Avem Turn Right Onto Ne 4th Ave, Turn Left Onto Ne 151st Terr. On Corner Of Ne 151st Terr And Ne 8th St.
Please contact your ZFC agent for more information about MLS# MFRGC532082 or any other homes for sale in Williston or elsewhere in the Levy County area.
Tbd Ne 151st Ter Price Calculator
The payment calculator figures for Tbd Ne 151st Ter should be used as an estimate only. Loan terms including interest rate, and required downpayment will vary with each lender and/or individual. RE taxes for this home for sale are estimated based on the actual property taxes for this property for the tax year 2024 which are $136 but will likely change when this home sells. These estimations are calculated from a list price of $293,000 and a 25% down payment and do not include homeowners insurance which will vary greatly depending on the home characteristics and location.
Recent Home Sales near Tbd Ne 151st Ter
MLS# MFRGC532082 Listing History
Map of Tbd Ne 151st Ter Williston FL 32696
The data relating to homes for sale or lease or other real estate for sale or for rent on the ZFC website comes in part from a cooperative data exchange program of the MLS in which this Broker participates. The real estate displayed may not be all of the homes in the database, or all of the properties listed with Brokers participating in the cooperative data exchange program. Homes for sale that are listed by Brokers other than this Broker are marked with either the listing Broker's name or the MLS name or a logo provided by the MLS and the details page about such properties includes the name of the listing Brokers. Information provided is thought to be reliable but is not guaranteed to be accurate; you are advised to verify facts that are important to you. No warranties, expressed or implied, are provided for the data herein, or for their use or interpretation by the user. ZFC, the Florida Association of Realtors and its cooperating Multiple Listing Services do not create, control or review the property data displayed herein and take no responsibility for the content of such records. Federal law including the fair housing act prohibits discrimination on the basis of race, color, religion, sex, handicap, familial status or national origin in the sale, rental or financing of housing. IDX information is provided exclusively for personal, non-commercial use, and may not be used for any purpose other than to identify prospective properties consumers may be interested in purchasing. Information is deemed reliable but not guaranteed.
-
- Palm Beach
- Boca Raton
- Highland Beach
- Delray Beach
- Boynton Beach
- Lake Worth
- Wellington
- West Palm Beach
- Palm Beach Gardens
- Jupiter
- Singer Island
- Broward
- Fort Lauderdale
- Parkland
- Coral Springs
- Davie
- Weston
- Plantation
- Pembroke Pines
- Southwest Ranches
- Hillsboro Beach
- Miami/Dade
- Miami
- Miami Beach
- Aventura
- Sunny Isles
- Bal Harbour
- Surfside
- Coral Gables
- Treasure Coast
- Port Saint Lucie
- Fort Pierce
- Palm City
- Jensen Beach
- Vero Beach
- Stuart
- Hobe Sound
- Gulf Coast
- Naples
- Marco Island
- Fort Myers
- Bonita Springs
- Sarasota
- Tampa
- Clearwater





