11 MAIN STREET WINDERMERE FL 34786
Overview of 11 Main St
No
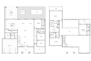
Under construction. Brand new construction in the heart of downtown windermere currently under construction! walking distance to downtown events, the farmers market, food trucks, and the local brewery. Historic windermere is golf cart friendly and known for its outdoor lifestyle with parks, recreation areas, tennis courts, public docks, and swimming areas. bring your boat! This waterfront homesite sits on fischer canal with access to the 13 lakes of the spring-fed butler chain of lakes. A new seawall and dock provide space for your boat and jet ski and no hoa fees! this custom home is currently under construction with an expected completion date of late summer 2026. The thoughtfully designed two-story residence will offer approximately 4,700 square feet, featuring expansive open living spaces, soaring ceilings, and a modern architectural design. The floor plan includes a spacious great room, designer kitchen, and seamless indoor-outdoor living opening to the lanai and pool area overlooking the canal. the layout features a luxurious first-floor primary suite, additional bedrooms and loft space upstairs, private balcony areas, and a two-car garage, creating a perfect blend of comfort, style, and waterfront living in one of central floridas most sought-after lakefront communities.
This luxury single family home was built in 2026 and features 5 bedrooms, and 5 full bathrooms. This home for sale is 6,114 square feet, with 4,723 sq ft being air conditioned living space. The home has a 2 car garage and does not have a private swimming pool.
Directions to this property are as follows: Colonial Dr To Main St South Just Over Canal Bridge. Home Second On The Left.
Please contact your ZFC agent for more information about MLS# MFRO6387596 or any other homes for sale in Windermere or elsewhere in the Orange County area.
11 Main Street Price Calculator
The payment calculator figures for 11 Main St should be used as an estimate only. Loan terms including interest rate, and required downpayment will vary with each lender and/or individual. RE taxes for this home for sale are estimated based on the actual property taxes for this property for the tax year 2025 which are $8,194 but will likely change when this home sells. These estimations are calculated from a list price of $6,700,000 and a 25% down payment and do not include homeowners insurance which will vary greatly depending on the home characteristics and location.
Recent Home Sales near 11 Main Street
MLS# MFRO6387596 Listing History
Orange County Schools
Elementary School
Middle School
High School
Map of 11 Main Street Windermere FL 34786
Similar communities in Windermere
The data relating to homes for sale or lease or other real estate for sale or for rent on the ZFC website comes in part from a cooperative data exchange program of the MLS in which this Broker participates. The real estate displayed may not be all of the homes in the database, or all of the properties listed with Brokers participating in the cooperative data exchange program. Homes for sale that are listed by Brokers other than this Broker are marked with either the listing Broker's name or the MLS name or a logo provided by the MLS and the details page about such properties includes the name of the listing Brokers. Information provided is thought to be reliable but is not guaranteed to be accurate; you are advised to verify facts that are important to you. No warranties, expressed or implied, are provided for the data herein, or for their use or interpretation by the user. ZFC, the Florida Association of Realtors and its cooperating Multiple Listing Services do not create, control or review the property data displayed herein and take no responsibility for the content of such records. Federal law including the fair housing act prohibits discrimination on the basis of race, color, religion, sex, handicap, familial status or national origin in the sale, rental or financing of housing. IDX information is provided exclusively for personal, non-commercial use, and may not be used for any purpose other than to identify prospective properties consumers may be interested in purchasing. Information is deemed reliable but not guaranteed.
-
- Palm Beach
- Boca Raton
- Highland Beach
- Delray Beach
- Boynton Beach
- Lake Worth
- Wellington
- West Palm Beach
- Palm Beach Gardens
- Jupiter
- Singer Island
- Broward
- Fort Lauderdale
- Parkland
- Coral Springs
- Davie
- Weston
- Plantation
- Pembroke Pines
- Southwest Ranches
- Hillsboro Beach
- Miami/Dade
- Miami
- Miami Beach
- Aventura
- Sunny Isles
- Bal Harbour
- Surfside
- Coral Gables
- Treasure Coast
- Port Saint Lucie
- Fort Pierce
- Palm City
- Jensen Beach
- Vero Beach
- Stuart
- Hobe Sound
- Gulf Coast
- Naples
- Marco Island
- Fort Myers
- Bonita Springs
- Sarasota
- Tampa
- Clearwater





