807 ANDREW STREET WINTER HAVEN FL 33881
See Also...
Overview of 807 Andrew St
No
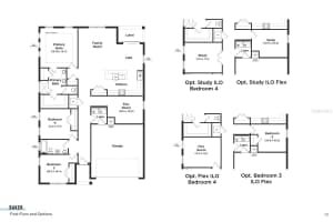
Under construction. Welcome to the baker floor plan a spacious 3-bedroom, 2-bath home with a versatile flex space designed to fit your lifestyle. As you walk through the front door, youre greeted by a bright and inviting foyer that opens to two comfortable bedrooms at the front of the home, perfectly positioned around a beautifully appointed full bathroom. Down the hallway, youll find a convenient flex space ideal for a home office, playroom, or reading nook. Continue into the heart of the home and youll instantly fall in love with the open concept layout. The large kitchen, featuring stunning granite countertops, crisp cabinets, and sleek 17x17 tile flooring, seamlessly overlooks the dining and living areas making it perfect for entertaining or gathering with family. Just off the dining area, sliding doors lead to your covered lanai, offering a peaceful view of the backyard a wonderful space to relax and enjoy your morning coffee or evening breeze. Tucked privately at the back of the home, the primary suite is a true retreat with a spacious layout and an elegant ensuite bathroom complete with dual vanities and a walk-in shower. With its open design, modern finishes, and thoughtful flow, the baker floor plan effortlessly combines comfort, style, and functionality the perfect place to call home.
This lovely single family home was built in 2025 and features 3 bedrooms, and 2 full bathrooms. This home for sale is 2,414 square feet, with 1,814 sq ft being air conditioned living space. The home has a 2 car garage and does not have a private swimming pool.
Directions to this property are as follows: From I-4 Take Exit 55 (us-27). Head South On Us-27, Keep Right For State Road 544 / Lucerne Park Rd, Follow Sr-544 About 3 Miles Willowbrook North Will Be On The Right.
Please contact your ZFC agent for more information about MLS# MFRO6355677 or any other homes for sale in Winter Haven or elsewhere in the Polk County area.
807 Andrew Street Price Calculator
The payment calculator figures for 807 Andrew St should be used as an estimate only. Loan terms including interest rate, and required downpayment will vary with each lender and/or individual. RE taxes for this home for sale are estimated based on the actual property taxes for this property for the tax year 2025 which are $2,808 but will likely change when this home sells. These estimations are calculated from a list price of $349,990 and a 25% down payment and do not include homeowners insurance which will vary greatly depending on the home characteristics and location.
Recent Home Sales near 807 Andrew Street
MLS# MFRO6355677 Listing History
Public Transportation
Citrus Connection: Lucerne Park Rd & Vista Del Lago Dr
Citrus Connection: Lucerne Park & Ixora Dr
Map of 807 Andrew Street Winter Haven FL 33881
Similar communities in Winter Haven
The data relating to homes for sale or lease or other real estate for sale or for rent on the ZFC website comes in part from a cooperative data exchange program of the MLS in which this Broker participates. The real estate displayed may not be all of the homes in the database, or all of the properties listed with Brokers participating in the cooperative data exchange program. Homes for sale that are listed by Brokers other than this Broker are marked with either the listing Broker's name or the MLS name or a logo provided by the MLS and the details page about such properties includes the name of the listing Brokers. Information provided is thought to be reliable but is not guaranteed to be accurate; you are advised to verify facts that are important to you. No warranties, expressed or implied, are provided for the data herein, or for their use or interpretation by the user. ZFC, the Florida Association of Realtors and its cooperating Multiple Listing Services do not create, control or review the property data displayed herein and take no responsibility for the content of such records. Federal law including the fair housing act prohibits discrimination on the basis of race, color, religion, sex, handicap, familial status or national origin in the sale, rental or financing of housing. IDX information is provided exclusively for personal, non-commercial use, and may not be used for any purpose other than to identify prospective properties consumers may be interested in purchasing. Information is deemed reliable but not guaranteed.
-
- Palm Beach
- Boca Raton
- Highland Beach
- Delray Beach
- Boynton Beach
- Lake Worth
- Wellington
- West Palm Beach
- Palm Beach Gardens
- Jupiter
- Singer Island
- Broward
- Fort Lauderdale
- Parkland
- Coral Springs
- Davie
- Weston
- Plantation
- Pembroke Pines
- Southwest Ranches
- Hillsboro Beach
- Miami/Dade
- Miami
- Miami Beach
- Aventura
- Sunny Isles
- Bal Harbour
- Surfside
- Coral Gables
- Treasure Coast
- Port Saint Lucie
- Fort Pierce
- Palm City
- Jensen Beach
- Vero Beach
- Stuart
- Hobe Sound
- Gulf Coast
- Naples
- Marco Island
- Fort Myers
- Bonita Springs
- Sarasota
- Tampa
- Clearwater





