1008 H Jackson Street Melbourne FL 32901 Sold 11/14/2025 (1055280)
See Also...
Overview of Parcel 28-37-02-80-00000.0-0013.00
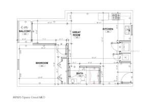
Vacant land. ** Business opportunity ** fully approved, shovel-ready multifamily development in the very heart of booming downtown melbourne. the sale includes a prime lot along with a 1-year valid construction permit for a modern 10-unit apartment building featuring: - 8 spacious units of 2 bedrooms / 2 bathrooms - 2 units of 1 bedroom / 1 bathroom - 14 dedicated parking spaces - an elevator for tenant convenience - contemporary architectural design and professional landscaping this is a true turnkey project the financials are equally compelling. With projected gross annual rental income exceeding $250,000 all approved plans, permits, and documentation will transfer to the buyer at closing with option to have your own builder or deliver a complete project with our turnkey option.
Please contact your ZFC agent for more information about MLS# 1055280 or any other land for sale in Melbourne or elsewhere in the Brevard County area.
Parcel 28-37-02-80-00000.0-0013.00 Price Calculator
The payment calculator figures for Parcel 28-37-02-80-00000.0-0013.00 should be used as an estimate only. Loan terms including interest rate, and required downpayment will vary with each lender and/or individual. RE taxes for this land for sale are estimated based on the actual property taxes for this property for the tax year 2024 which are $4,159 but will likely change when this land sells. These estimations are calculated from a list price of $770,000 and a 25% down payment and do not include homeowners insurance which will vary greatly depending on the land characteristics and location.
Recent Land Sales near Parcel 28-37-02-80-00000.0-0013.00
MLS# 1055280 Listing History
Brevard County Schools
Elementary School
Middle School
High School
Public Transportation
Space Coast Area Transit:
Space Coast Area Transit:
Space Coast Area Transit:
Route 30 South Beach Connector
Space Coast Area Transit:
Route 30 South Beach Connector
Space Coast Area Transit:
Map of Parcel 28-37-02-80-00000.0-0013.00 Melbourne FL 32901
The data relating to homes for sale or lease or other real estate for sale or for rent on the ZFC website comes in part from a cooperative data exchange program of the MLS in which this Broker participates. The real estate displayed may not be all of the homes in the database, or all of the properties listed with Brokers participating in the cooperative data exchange program. Homes for sale that are listed by Brokers other than this Broker are marked with either the listing Broker's name or the MLS name or a logo provided by the MLS and the details page about such properties includes the name of the listing Brokers. Information provided is thought to be reliable but is not guaranteed to be accurate; you are advised to verify facts that are important to you. No warranties, expressed or implied, are provided for the data herein, or for their use or interpretation by the user. ZFC, the Florida Association of Realtors and its cooperating Multiple Listing Services do not create, control or review the property data displayed herein and take no responsibility for the content of such records. Federal law including the fair housing act prohibits discrimination on the basis of race, color, religion, sex, handicap, familial status or national origin in the sale, rental or financing of housing. IDX information is provided exclusively for personal, non-commercial use, and may not be used for any purpose other than to identify prospective properties consumers may be interested in purchasing. Information is deemed reliable but not guaranteed.
-
- Palm Beach
- Boca Raton
- Highland Beach
- Delray Beach
- Boynton Beach
- Lake Worth
- Wellington
- West Palm Beach
- Palm Beach Gardens
- Jupiter
- Singer Island
- Broward
- Fort Lauderdale
- Parkland
- Coral Springs
- Davie
- Weston
- Plantation
- Pembroke Pines
- Southwest Ranches
- Hillsboro Beach
- Miami/Dade
- Miami
- Miami Beach
- Aventura
- Sunny Isles
- Bal Harbour
- Surfside
- Coral Gables
- Treasure Coast
- Port Saint Lucie
- Fort Pierce
- Palm City
- Jensen Beach
- Vero Beach
- Stuart
- Hobe Sound
- Gulf Coast
- Naples
- Marco Island
- Fort Myers
- Bonita Springs
- Sarasota
- Tampa
- Clearwater


