1646 SCARLETT AVENUE NORTH PORT FL 34289
See Also...
Overview of 1646 Scarlett Ave
No
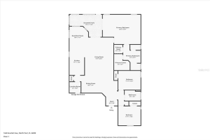
Don't miss this home for sale in The Woodlands! This impeccably maintained residence offers nearly 1,800 square feet of well-designed living space with 3 bedrooms, 2 full bathrooms, and an attached 2-car garage. A bright, open great-room floor plan creates an inviting first impression, ideal for both everyday living and entertaining. The upgraded kitchen features granite countertops, ample cabinetry and workspace, a breakfast nook, and a convenient breakfast bar that seamlessly connects to the main living area. Sliding doors lead to a screened lanai and spacious paver patio overlooking a private wooded preserve, providing a tranquil setting for relaxing or enjoying the outdoors. The expansive primary suite, approximately 20 x 15, easily accommodates a sitting area or additional furnishings. The en-suite bathroom includes a dual-sink vanity, walk-in shower, generous walk-in closet, and a large linen closet. A split-bedroom layout enhances privacy, with two additional bedrooms and a full bath located on the opposite side of the homeideal for guests or a home office setup. Recent updates offer comfort and peace of mind, including a new hvac system (2020) and hurricane-impact windows that enhance energy efficiency, security, and storm protection. The home is not located in a flood zone, and flood insurance is not required. Low quarterly hoa fees of $286 include lawn care, and the cdd fee is conveniently incorporated into the annual property tax bill. Located within the vibrant lakeside plantation community, residents enjoy access to a clubhouse, year-round heated pool and spa, fitness center, library, and tennis, pickleball, and basketball courts, along with a calendar of community activities. Award-winning gulf beaches are approximately 30 minutes away, with shopping, dining, and everyday conveniences just minutes from home. Whether used as a primary residence or seasonal retreat, this move-in-ready home offers a desirable combination of location, thoughtful updates, and low-maintenance living. Furnishings are negotiable.
This lovely single family home was built in 2004 and features 3 bedrooms, and 2 full bathrooms. This home for sale is 2,469 square feet, with 1,786 sq ft being air conditioned living space. The home has a 2 car garage and does not have a private swimming pool, although there is a community pool in the complex for use by residents.
Directions to this property are as follows: South On I75, Exit 179 - Toledo Blvd Blvd., Right Onto Toledo Blade, Left Onto Plantation Blvd At Entrance To Lakeside Plantation, Right Onto Scarlett Ave., Follow Around Bend To #1646 On The Left.
Please contact your ZFC agent for more information about MLS# MFRC7522231 or any other homes for sale in North Port or elsewhere in the Sarasota County area.
1646 Scarlett Ave Price Calculator
The payment calculator figures for 1646 Scarlett Ave should be used as an estimate only. Loan terms including interest rate, and required downpayment will vary with each lender and/or individual. RE taxes for this home for sale are estimated based on the actual property taxes for this property for the tax year 2025 which are $7,179 but will likely change when this home sells. These estimations are calculated from a list price of $324,900 and a 25% down payment and do not include homeowners insurance which will vary greatly depending on the home characteristics and location.
Recent Home Sales near 1646 Scarlett Ave
MLS# MFRC7522231 Listing History
Sarasota County Schools
Elementary School
Middle School
High School
Open House Schedule for 1646 SCARLETT AVE
Map of 1646 Scarlett Ave North Port FL 34289
The data relating to homes for sale or lease or other real estate for sale or for rent on the ZFC website comes in part from a cooperative data exchange program of the MLS in which this Broker participates. The real estate displayed may not be all of the homes in the database, or all of the properties listed with Brokers participating in the cooperative data exchange program. Homes for sale that are listed by Brokers other than this Broker are marked with either the listing Broker's name or the MLS name or a logo provided by the MLS and the details page about such properties includes the name of the listing Brokers. Information provided is thought to be reliable but is not guaranteed to be accurate; you are advised to verify facts that are important to you. No warranties, expressed or implied, are provided for the data herein, or for their use or interpretation by the user. ZFC, the Florida Association of Realtors and its cooperating Multiple Listing Services do not create, control or review the property data displayed herein and take no responsibility for the content of such records. Federal law including the fair housing act prohibits discrimination on the basis of race, color, religion, sex, handicap, familial status or national origin in the sale, rental or financing of housing. IDX information is provided exclusively for personal, non-commercial use, and may not be used for any purpose other than to identify prospective properties consumers may be interested in purchasing. Information is deemed reliable but not guaranteed.
-
- Palm Beach
- Boca Raton
- Highland Beach
- Delray Beach
- Boynton Beach
- Lake Worth
- Wellington
- West Palm Beach
- Palm Beach Gardens
- Jupiter
- Singer Island
- Broward
- Fort Lauderdale
- Parkland
- Coral Springs
- Davie
- Weston
- Plantation
- Pembroke Pines
- Southwest Ranches
- Hillsboro Beach
- Miami/Dade
- Miami
- Miami Beach
- Aventura
- Sunny Isles
- Bal Harbour
- Surfside
- Coral Gables
- Treasure Coast
- Port Saint Lucie
- Fort Pierce
- Palm City
- Jensen Beach
- Vero Beach
- Stuart
- Hobe Sound
- Gulf Coast
- Naples
- Marco Island
- Fort Myers
- Bonita Springs
- Sarasota
- Tampa
- Clearwater





