9972 RED CANOE ALLEY ORLANDO FL 32832
See Also...
Overview of 9972 Red Canoe Aly
No
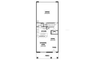
Don't miss this townhouse for sale in Live Oak Estates! Under construction. As you step inside the aurora, you are greeted by an inviting open-concept gathering room, seamlessly connecting the dining room and kitchen. The flowing layout creates an expansive and airy atmosphere, perfect for both entertaining guests and enjoying everyday life. The primary room is a true retreat, offering a sanctuary of relaxation and tranquility. The spacious bedroom is complemented by a large walk-in closet, providing plenty of storage for your wardrobe and personal items. With two additional bedrooms, this townhome provides flexibility for a growing family, a home office, or a guest room.
This lovely townhouse was built in 2025 and features 3 bedrooms, and 2 full bathrooms plus 1 half bath. This townhouse for sale is 1,988 square feet, with 1,476 sq ft being air conditioned living space. The townhouse has a 2 car garage and does not have a private swimming pool, although there is a community pool in the complex for use by residents.
Directions to this property are as follows: Coming Off 417 South, Take Exit 24 And Make A Left Onto Dowden Road. Drive 1.5 Miles Down And Meridian Will Be On Your Left-hand Side. Sales Center Located At 9623 Peace Drive Orlando Fl 32832.
Please contact your ZFC agent for more information about MLS# MFRO6362336 or any other townhouses for sale in Orlando or elsewhere in the Orange County area.
9972 Red Canoe Alley Price Calculator
The payment calculator figures for 9972 Red Canoe Aly should be used as an estimate only. Loan terms including interest rate, and required downpayment will vary with each lender and/or individual. RE taxes for this townhouse for sale are estimated based on the actual property taxes for this property for the tax year 2024 which are $1,569 but will likely change when this townhouse sells. These estimations are calculated from a list price of $399,990 and a 25% down payment and do not include homeowners insurance which will vary greatly depending on the townhouse characteristics and location.
Recent Townhouse Sales near 9972 Red Canoe Alley
MLS# MFRO6362336 Listing History
Orange County Schools
Elementary School
Middle School
High School
Open House Schedule for 9972 RED CANOE ALY
Map of 9972 Red Canoe Alley Orlando FL 32832
Similar communities in Orlando
The data relating to homes for sale or lease or other real estate for sale or for rent on the ZFC website comes in part from a cooperative data exchange program of the MLS in which this Broker participates. The real estate displayed may not be all of the homes in the database, or all of the properties listed with Brokers participating in the cooperative data exchange program. Homes for sale that are listed by Brokers other than this Broker are marked with either the listing Broker's name or the MLS name or a logo provided by the MLS and the details page about such properties includes the name of the listing Brokers. Information provided is thought to be reliable but is not guaranteed to be accurate; you are advised to verify facts that are important to you. No warranties, expressed or implied, are provided for the data herein, or for their use or interpretation by the user. ZFC, the Florida Association of Realtors and its cooperating Multiple Listing Services do not create, control or review the property data displayed herein and take no responsibility for the content of such records. Federal law including the fair housing act prohibits discrimination on the basis of race, color, religion, sex, handicap, familial status or national origin in the sale, rental or financing of housing. IDX information is provided exclusively for personal, non-commercial use, and may not be used for any purpose other than to identify prospective properties consumers may be interested in purchasing. Information is deemed reliable but not guaranteed.
-
- Palm Beach
- Boca Raton
- Highland Beach
- Delray Beach
- Boynton Beach
- Lake Worth
- Wellington
- West Palm Beach
- Palm Beach Gardens
- Jupiter
- Singer Island
- Broward
- Fort Lauderdale
- Parkland
- Coral Springs
- Davie
- Weston
- Plantation
- Pembroke Pines
- Southwest Ranches
- Hillsboro Beach
- Miami/Dade
- Miami
- Miami Beach
- Aventura
- Sunny Isles
- Bal Harbour
- Surfside
- Coral Gables
- Treasure Coast
- Port Saint Lucie
- Fort Pierce
- Palm City
- Jensen Beach
- Vero Beach
- Stuart
- Hobe Sound
- Gulf Coast
- Naples
- Marco Island
- Fort Myers
- Bonita Springs
- Sarasota
- Tampa
- Clearwater





